集成灶安装方法详细介绍_焦点娱乐集成灶

您所在的位置是: 首页 » 新闻资讯 » 集成灶 » 集成灶安装方法详细介绍

集成灶安装方法详细介绍

返回列表来源:焦点娱乐 发布日期:2019-12-5 17:28:21 浏览:219

随着人们生活品质的不断提升,越来越多的人开始关注身体健康方面的问题,厨房用品也开始渐渐往着低油烟健康厨房的方向发展,集成灶就是近两年来大火的厨房用品之一,因为有着超高吸油烟效率以及低占用空间的优势,收到了消费者的一致好评。但许多消费者对于集成灶这样的新兴产品安装产生了大量的疑问,对此,集成灶十大品牌焦点娱乐集成灶就来给大家讲解一下关于集成灶安装方面的知识:

预先确定好集成灶的安装位置及尺寸

1. 集成灶安装需要尽量避开一些地方,防止出现吸油烟效果不佳的情况;集成灶安装位置避开窗户的上风口,如果选择窗户旁边且是风向口,若打开窗户使用则会影响油烟吸净率,如果窗口正是风向口,建议避开窗户位置;

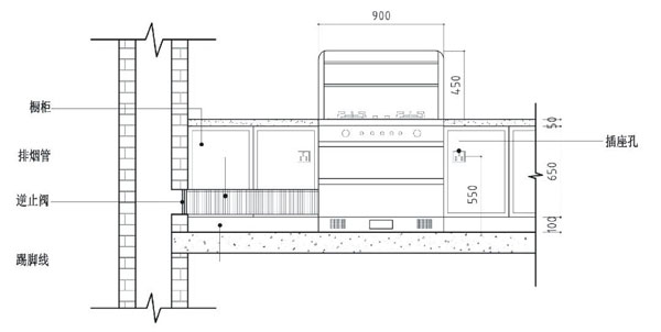
焦点娱乐D6Z集成灶安装场景

2. 集成灶在定位时确定排烟方向、燃气表、燃气管位置,防止燃气表、燃气管影响排烟管的摆放;集成灶排烟方向与烟道所在墙壁距离大于30公分,不宜超过2米;

3. 集成灶左右两侧尽量不要设计拉篮,若设计拉篮,请提前确定拉篮深度,防止拉篮阻挡集成灶电源插线、排烟管、燃气管道放置;

4. 集成灶左右两侧需要接通燃气、连接电源、排烟管,所以对于集成灶需要接线、排烟侧橱柜进行开孔,燃气借口、电源线接口开方孔、圆孔均可,开孔时孔径宜大不宜小,方便管路、电路连接和插拔,排烟管开孔为方形,开孔原则仍是宜大不宜小,方便烟管与机器连接、螺丝固定;

5. 安装孔位距离左右墙面的距离不得小于300mm,灶具工作台面与上方橱柜的距离不得小于750mm。带有电蒸箱的机型,机器前方需留有500mm宽的空间,以便电蒸箱门组件的完全打开。为不影响排烟效果,外排风管的长度不应大于2米,≤90度的急转弯不能超过2个。

集成灶安装示范图

集成灶安装示范图(来源于网络)

预留集成灶插座

6.在预留集成灶电源插座位置时,请提前确认集成灶所使用的插座,目前丰向标集成灶F2蒸箱款、F70蒸箱款、一电一气款使用的是16A电源线,所以在走线时请用4平方线,接16A电源插座;其余款型集成灶使用10A电源插座即可。插座位置选择在集成灶左右两侧橱柜内即可,一般距离集成灶保持在50公分以内。

确定橱柜预留尺寸

7. 每款集成灶的长度有所不同,确定好机型之后,选择预留相应的机型长度尺寸,在预留尺寸时,在集成灶长度的基础上加5mm,确保集成灶放进去,多出来的长度安装完成后可打玻璃胶进行衔接封闭;

集成灶安装示范图

集成灶安装示范图(来源于网络)

确定公共烟道或墙壁开孔位置

8. 墙壁开孔位置确定时根据机器放置位置确定,一般距离地面12公分以上,保持烟管从机器一侧连接出来是垂直状态,开孔孔径为18cm,目前市面上开孔器一般为18cm。

以上就是关于集成灶安装的详细讲解,如果您家中正好需要安装集成灶,可以多多关注,与安装师傅多多沟通,才能以后的厨房生活更加健康安全,焦点娱乐集成灶,集成灶十大品牌之一,致力于为客户打造“快乐的厨房生活”,如果您有集成灶方面的问题,欢迎来咨询焦点娱乐集成灶。

相关资讯《使用集成灶应该注意以下问题》

本文标签:集成灶 集成灶安装 集成灶安装方法 集成灶安装步骤 集成灶尺寸 上一篇:集成灶应该怎么清洗 下一篇:集成灶使用三年后的感想